New Church Road
Disciplines / Full Construction Package / Concept and 3D Design/ VR / Planning
/ Building Control / Contract Admin / Extension & Renovation
Your Location:
West Bergholt, Essex
–
Project Type:
Private Residential
–
Year Completed:
Phase one. Project start date: May 2022
Phase two. Winter 2025
Completion: Spring 2025.
–

This project represents a comprehensive reimagining of a 1980s detached house. At Studio Hedg, our vision was to strip away the dated, inefficient elements of the original property and introduce a modern, high-performance home that fosters a profound physical and visual connection to its surrounding landscape. Executed over a thoughtfully managed phased timeline beginning with the main house in 2022 and culminating in a bespoke garage conversion in spring 2025 this project is a testament to sustainable modernisation.
Buildings with Purpose: The Garden Room Transition
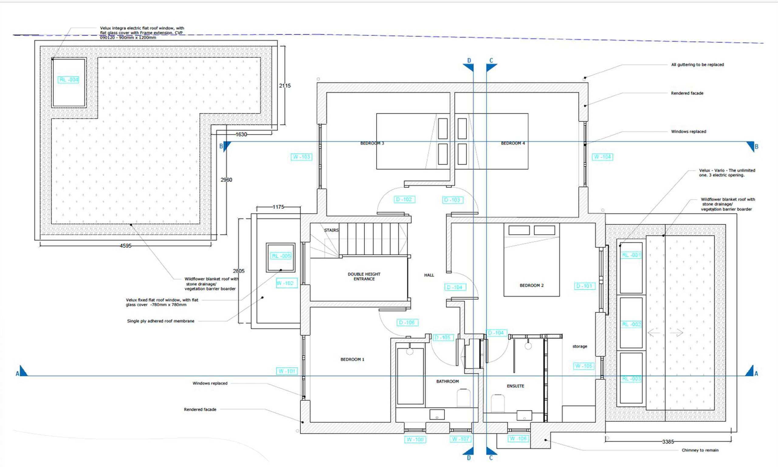
A primary objective was replacing an underutilised, thermally inefficient conservatory with a modern, purposeful “garden room” designed for year-round comfort. We completely redesigned the ground floor, creating an expansive, open-plan kitchen, living, and dining area.
To ensure a seamless flow between the original structure and the new extension, we employed clever structural solutions. One main structural beam was hidden within the ceiling to maintain an uninterrupted plane, while another was intentionally left exposed at the threshold. This exposed beam serves as an architectural marker, signalling the transition into the garden room, and doubles as a functional and beautiful shelf for the client’s trailing plants. Externally, the extension features a distinctive brick pattern that adds texture, grounding the new addition and giving it a unique architectural identity.
Harnessing the Power of Light
Deep 1980s floor plans often suffer from dark, central spaces. By opening up the ground floor, we needed to ensure natural light could penetrate deep into the home. We achieved this by installing a strategically placed, large rooflight that floods the heart of the newly formed open-plan living area with sunshine. Large sliding doors and a bespoke dropped window seat on the side elevation further dissolve the boundary between inside and out, inviting the garden into the home’s daily rhythm.

Building Healthier Homes & Mindful Materials
We prioritise environments that actively contribute to their occupants’ well-being. To elevate the building’s thermal performance and aesthetic warmth, all existing windows were replaced with high-specification, aluminium-clad wooden units. This careful material selection provides a highly durable, low-maintenance exterior while bringing the natural, calming warmth of timber into the internal living spaces.
Sustainability and Carbon Reduction: The Meadow Roofs
True to our commitment to environmentally responsible design, we introduced sustainable meadow-flower roofs on both the front and rear of the property. These living roofs do more than soften the architectural lines; they provide an attractive, highly effective, and sustainable solution for managing rainwater runoff while promoting local biodiversity right on the client’s doorstep.


Accompanying Clients from Start to Finish
We guided our clients through a carefully staged journey to minimise disruption and maximise the project’s potential. Following the successful completion of Phase 01 in early 2022, we returned to execute the final phase, which was completed in August 2025. This involved converting a standard detached garage into a high-specification home gym. We replaced the original pitched roof with a fully insulated meadow roof to echo the main house. We rendered the exterior to perfectly match, completely unifying the property’s aesthetic and significantly boosting its curb appeal.



Project Summary: Living Our Ethos at New Church Road:
The transformation of New Church Road perfectly encapsulates the core values that drive Studio Hedg. By replacing an inefficient 1980s conservatory with a highly functional, year-round garden room, we delivered a Building with Purpose tailored entirely to the family’s modern lifestyle. Our dedication to harnessing the Power of Light is central to the design, utilising a strategic central rooflight and expansive sliding doors to flood the deep floor plan with natural daylight and align the home with natural circadian rhythms.
Furthermore, this project is a prime example of our commitment to Sustainability values. From the high-performance aluminium-clad timber windows that improve the thermal envelope to the beautifully integrated green meadow roofs that manage rainwater runoff, every material was chosen to minimise environmental impact while creating a Healthier Home. Finally, successfully delivering this vision across a phased timeline from the initial 2022 remodel to the final 2025 gym conversion highlights our unwavering promise of Accompanying Clients from Start to Finish, ensuring a seamless, supportive journey that results in an exceptional, future-proofed home.







