Miller Lane
Disciplines: Spatial Reconfiguration / Multi-generational Design / Interior Remodelling / Front Extension

Your Location:
Colchester, Essex
–
Project Type:
Private Residential
–
Year Completed:
Project start date: July 2023
Completion: xxxx.

Harmonising Multi-Generational Living in Colchester
As architects in Colchester, Studio Hedg was tasked with a unique challenge at Miller Lane: designing a functional home for three generations living under one roof. Rather than a massive extension, we focused on an intelligent internal remodel to improve flow, privacy, and natural light.

The Brief: Three Generations
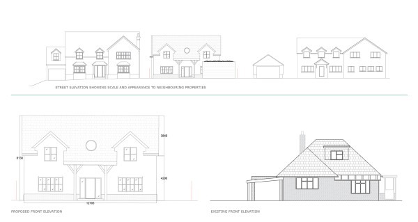
Miller Lane presented a practical challenge: designing a home for a multi-generational family under one roof. The existing house was spacious, but a central hallway and an awkwardly located utility room disrupted the ground-floor flow.
We did not propose a large new extension. Instead, we set out to efficiently reconfigure the existing layout of the house, rather than expanding it. Our aim was to establish private rooms for individual family members and a central, shared living area.
Intelligent Zoning.
The success of this Colchester home relies on how the ground floor is divided. We created a self-contained “annex” suite for the grandparents, featuring their own bedroom, bathroom, and lounge. An existing side door was utilised to offer this suite private access.
This private annex connects directly to the kitchen and garden room, the shared heart of the home. The newly enlarged second lounge and the entire first floor, home to the family bathroom, children’s bedrooms, and a master suite with a balcony, remain a dedicated retreat for parents and kids.


Improving Flow and Natural Light.
To ensure the ground floor worked seamlessly, we implemented key structural changes. By removing the central utility room, the original ground-floor hallway, and a chimney breast on the party wall, we fully opened the floor plan.
The structural changes created a much larger living room on the opposite side of the annex. To define this space without enclosing it, we designed a custom feature wall at the entrance. The wall incorporates a striking slatted timber section, introducing texture and creating a visual partition. It allows natural light to pass through and conceals storage by the front door.
A Hard-Working Home:
The Internal Remodel. Given the active household, purposeful storage and efficient services were essential:
- The Front Porch: The porch was enlarged to enhance the street facade and provide high-capacity storage for coats and shoes before entry.
- Smart Storage: Removing the old hallway allowed new built-in storage beneath the staircase, keeping the lounge clutter-free.
- The Service Core: The existing, inefficient bathroom in the centre of the plan was completely remodelled. We split this area to create a highly practical ground-floor WC. Alongside this, we relocated the utility space so it now opens directly into the kitchen.





Project Summary:
The Result: A Connected Family Home Miller Lane demonstrates how internal reconfiguration can transform a property’s feel and function. By removing key walls and redefining zones, we created a home with both privacy and a bright, flowing communal space for the whole family.




