Rockwood
Disciplines / Full Construction Package / Concept Design / Planning / Building Control / Principal Designers

Your Location:
Chelmsford, Essex
–
Project Type:
Private Residential
–
Year Completed:
Project start date: Winter 2023
Completion: Autumn 2025.

For Studio Hedg, every project is a chance not just to build a structure, but to create a home that truly connects with its surroundings and the people who live in it. The Rockwood project is a perfect example of this philosophy. What started as a commercial development on a beautiful, mature plot of land became a stunning example of how thoughtful, bespoke architectural design can transform a space and its value.
For a more in-depth review, please download our Concept Design Report.

From Dated Chalet to Dream Home
The initial property was a “chalet-style” bungalow, nestled within a picturesque garden. While the garden was a beautiful asset the client was keen to retain, the house itself was pretty dated and didn’t fit in with the more modern, larger properties in the neighbourhood. It had a cramped, compartmentalised layout with small rooms and poor outdoor connectivity, feeling more like a box dropped into the landscape than an integral part of it. It also didn’t meet current building regulations.
Recognising these challenges, we made the bold decision to recommend a new build rather than a renovation. The existing structure was so far gone that adapting it would have been financially and environmentally unviable. By starting fresh, we had the freedom to design a home that was not only larger and better suited to the neighbourhood, but also highly efficient and perfectly tailored to modern living.
A Lesson in Smart Design: The Footprint Story
When we decided to build a new home at Rockwood, we weren’t just focused on making it bigger. We were focused on making it smarter. The old bungalow, despite occupying a decent chunk of land, was incredibly inefficient. It had a small footprint but was wasted internally, with cramped rooms, lots of dead-end corridors, and poor flow.
Our key insight was this: It’s not about the sheer size of the building, but how you use the space you have.
When you look at the old and new footprints side by side, you’ll see a surprising truth: we didn’t increase the footprint by a considerable amount. Instead, we completely re-imagined the layout to create a home that feels exponentially more spacious.

Before: A series of small, disconnected rooms. A tiny kitchen, a cramped living room, and a hallway that served little purpose beyond getting from A to B. It felt like a maze, cutting off light and views.
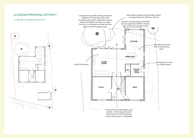
After: We created an ample, open-plan living space at the back of the house. By removing internal walls and designing with flow in mind, we turned what used to be a cramped space into a vibrant hub for family life. The strategic use of a double-height hallway and large windows pulls light deep into the home, making it feel bright and airy. The grand entrance isn’t just for show; it’s a design feature that gives the illusion of far more space, and the wider hallway feels much more generous.
This isn’t just about making a room feel bigger; it’s about adding real value. Our design approach improved the price per square meter floor area by optimising the use of the existing space. We didn’t just add more floor; we made every square foot count. The result is a home that feels luxurious, connected, and spacious all without a massive, resource-heavy expansion. It’s a perfect example of how thoughtful architecture can transform a property, proving that a smart, well-designed footprint trumps sheer size every single time.

A Journey of Design and Collaboration
Our design process is all about taking the client on a journey. We don’t just present a single solution; we explore multiple options to find the perfect fit. For the Rockwood project, our initial proposals focused on creating a new home that felt spacious, connected, and inviting.

We presented several design options, each with a focus on:
Seamless indoor-outdoor living: The previous house offered no real connection to the garden. Our designs introduced large, open-plan living spaces with expansive glazing and multiple access points, creating a smooth transition to the beautiful outdoor space. We even proposed a unique courtyard to create a more intimate, sheltered outdoor area that felt like a natural extension of the home.
Creating a “wow” factor: We aimed to make the home feel generous and luxurious without increasing its footprint. We achieved this by incorporating architectural features like a grand, double-height hallway and strategically placed windows. This created a sense of spaciousness and light, which significantly enhances the perceived value of the property.

Thoughtful and flexible spaces: The new design featured a larger footprint and a much more efficient layout, eliminating wasted corridor space. We created intimate, secluded rooms at the front of the house and a modern, open-plan living area at the back. We also gave the client the option of a green roof and timber cladding to make the home feel warm and nestled into its environment.
One of the most critical aspects of this project was the collaboration with the client and, critically, the local estate agent. By getting feedback from a buyer’s perspective, we were able to refine our designs and ensure the final product would be a highly desirable property on the market. This led to subtle but crucial changes, such as centralising the staircase to make the hallway feel even more generous and welcoming.
The Hallway: A Visual Masterpiece
One of the most potent design features we implemented was in the hallway This wasn’t just a way to access the house; it was the visual spine of the home. From the moment you step through the front door, your eye is immediately drawn through this grand space, past the staircase, and into the light-filled, open-plan living area. This intentional sightline creates a powerful journey, pulling you towards the breathtaking views of the garden at the rear.
Navigating the Details: The Planning Process
We understand that a successful project is as much about navigating the process as it is about the final design. The Rockwood site was located right on the boundary of a tree preservation area and was in a region with a high rate of project refusals. To mitigate this risk, we went a step further and initiated a pre-application consultation with the local council.
This strategic move was a game-changer. It allowed us to get direct feedback from the planning department, ensuring our design was sympathetic to the area and met their requirements. This gave the client the confidence to proceed with the project, knowing the council supported it. It also saved time and resources in the long run by preventing a formal refusal.




Project Summary:
The final design for Rockwood is a testament to our approach. It’s a modern, cottage-style home that feels warm and inviting, seamlessly connecting with its natural surroundings. The new build boasts:
1. An expansive open-plan living area that flows directly into the garden.
2. A grand hallway that draws you through the home.
3. Intimate, quiet spaces at the front that provide a sense of refuge.
4. Sustainable features include a green roof and timber cladding.
5. A layout that is flexible and works for modern family living.
The true success of the Rockwood project will be measured by how quickly it sells and at what price. By listening to the market and designing a home that not only looks beautiful but also feels right, we’ve created a product that we’re confident will sell itself. This project is a perfect example of how our detailed design process and strategic planning can deliver exceptional results, adding immense value for our clients.





